


Der lægges i projektet vægt på et godt naboskab mellem mennesker, der gerne vil have mulighed for at indgå i fællesskaber, men som også indimellem vil have mulighed for at være sig selv. Vi sikrer i fællesskabsrammerne for fælles aktiviteter, men deltagelse i aktiviteterne sker på frivillig basis og af lyst. På altanerne er der grønt og bygningens facade er beklædt med en behagelig træbeklædning.

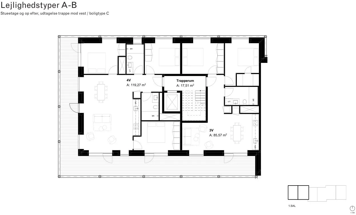
Vi tror på, det vigtige i et glidende overlap mellem privat, semiprivat og det offentlige rum for at opnå menneskelig komfort i en moderne, social bydel som denne tæt på dyrskuepladsen i Roskilde. Derfor indrettes lejligheder, tagterrasser og uderum med mulighed for både det sociale og det private liv, hvilket skaber en behagelig fleksibilitet for beboerne. Fra hver bolig er der direkte udgang til store altaner mod syd med rigeligt sol i løbet af dagen.


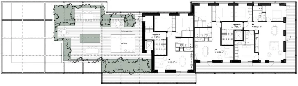
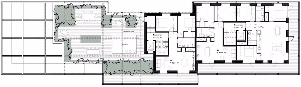
Skitseforslaget er indrettet med henblik på seniorsegmentet uden det dog på nogen måde er plejeboliger. Fællesskabet nydes derfor i fællesrummet eller på tagterrassen og udemiljøet bærer præg af små oaser til hyggeligt ophold. Med en klar ambition om at skabe sunde, naturlige boliger er byggeriet opført som en træbygning, der kombinerer æstetik, funktionalitet og miljømæssig ansvarlighed. Træets varme og taktile overflader skaber en indbydende atmosfære både inde og ude, samtidig med at materialet bidrager til et sundt indeklima og et reduceret CO₂-aftryk.
Boligernes facader er beklædt med træ, som over tid vil patinere smukt og understrege den naturlige materialitet. Store altaner og fælles tagterrasser er integreret med beplantning og træelementer, hvilket understøtter et grønt og levende udtryk. Beplantede facader og et integreret væksthus på tagterrassen bidrager til en harmonisk overgang mellem arkitektur og natur, hvor beboerne kan dyrke egne krydderurter eller blot nyde et grønt uderum midt i byen.
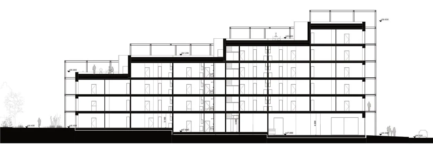
Facaden på sydsiden fremstår grønt og åbent og henvender sig til torvet. Boligerne mod nord, som ses nedenfor, opfattes mere lukkede og har ligeledes mulighed for at lukke af mod gaden vha. trælameller, som kan skydes frem og tilbage. Hele vejen rundt om bygningen er træ det gennemgående materiale.

