Projektet omfatter en omdisponering og mindre ombygning af en klassisk murermestervilla, hvor fokus har været at forbedre funktionaliteten uden at forstyrre husets eksisterende karakter.
Huset har over tid fået tilføjet flere nye elementer – herunder en tilbygning og et orangeri – og projektets ambition har derfor været at arbejde præcist og tilbageholdende med de nye indgreb, så helheden bevares og styrkes.
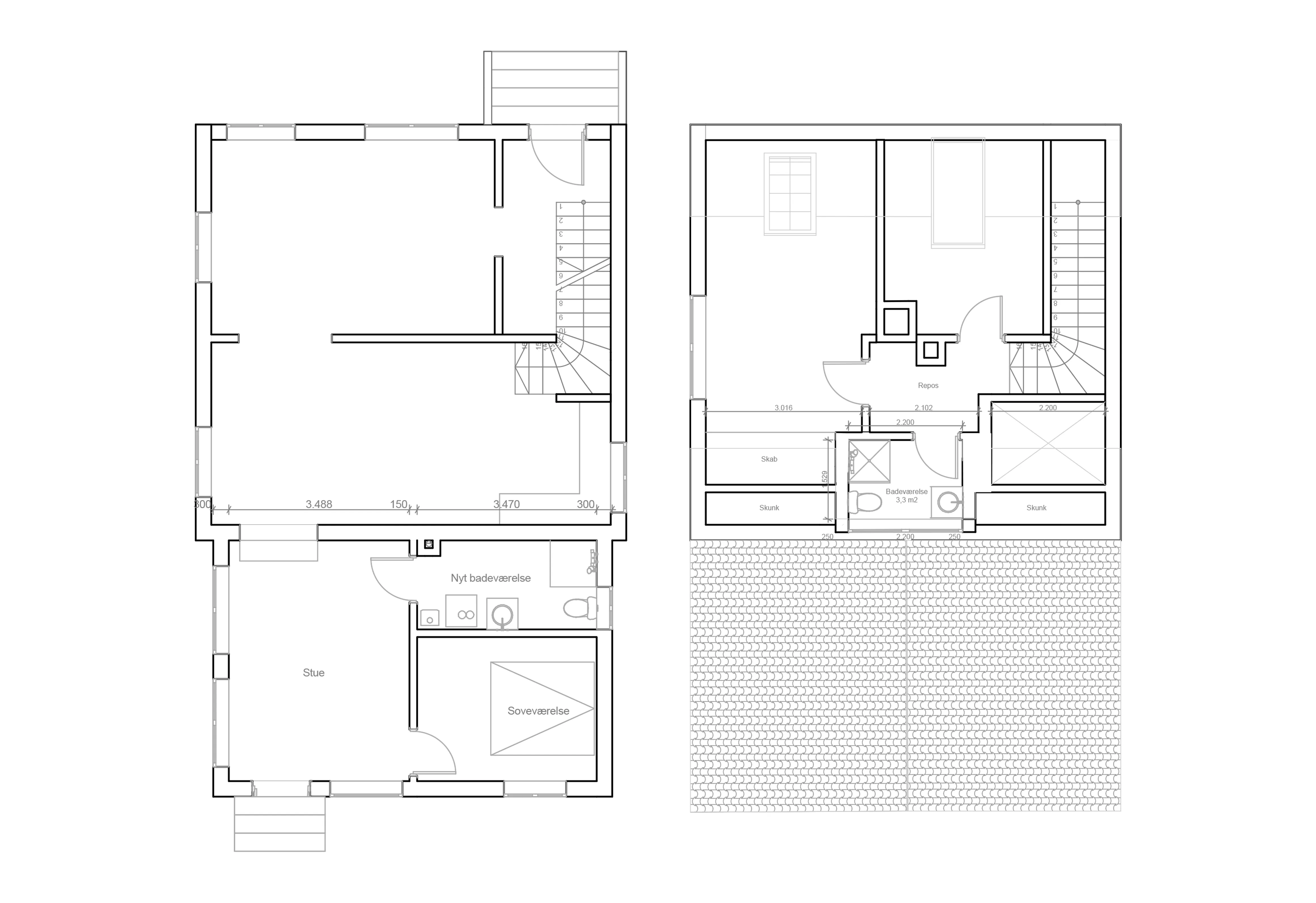
I stueplan er planløsningen reorganiseret ved at flytte badeværelset til bryggerset, som har frigivet plads i den eksisterende tilbygning og gjort det muligt at etablere et nyt soveværelse i direkte forbindelse med haven. Ændringen skaber en mere fleksibel og nutidig disponering uden at udvide husets volumen.

På førstesalen er der tilføjet en kvist, som tilfører både lys og funktion. Kvisten muliggør et mindre badeværelse, hvilket er en væsentlig forbedring i forhold til husets to soveværelser på etagen. Samtidig bringer den dagslys fra syd ind på førstesalen og styrker oplevelsen af rummelighed.
Kvisten er placeret symmetrisk på facaden og udført i falset zink med et vindue, der viderefører proportioner og detaljering fra det eksisterende hus. Målet har været at skabe et element, der fremstår som en naturlig del af bygningen – uden at tiltrække unødig opmærksomhed.

Projektet tager afsæt i en respekt for det eksisterende og en bevidsthed om, at kvalitet i denne type ombygninger ofte ligger i det, der ikke råber op. Resultatet er en mere velfungerende bolig, hvor nye funktioner er integreret med ro og præcision i den oprindelige arkitektur.
